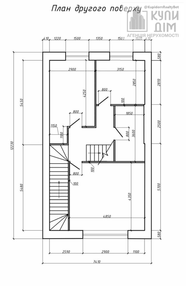
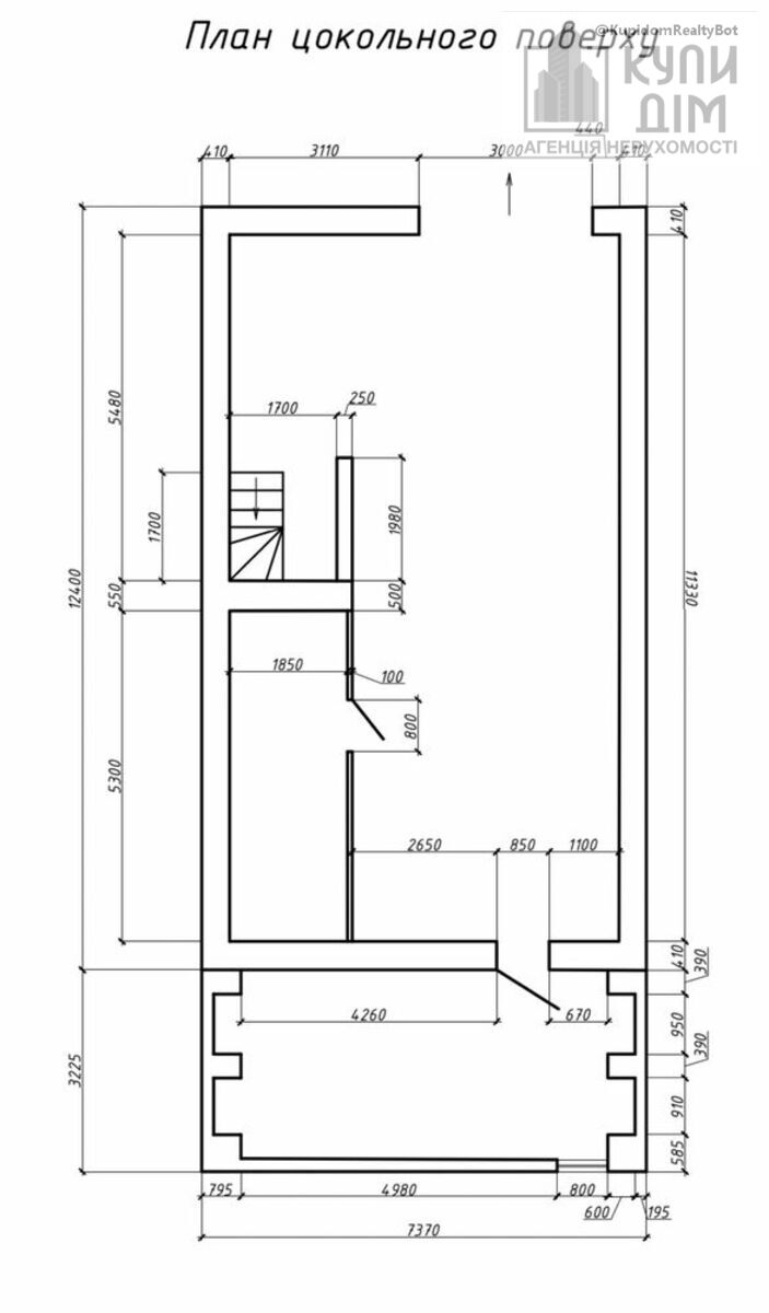
Продаж будинкiв
У Кропивницькому з’явився новий телеграм-бот, який допомагає в пошуку нерухомості в місті. Цей бот — справжній помічник для тих, хто шукає квартири, будинки або комерційні об’єкти. Шукає і продаж і оренду.
Основна перевага цього бота в тому, що він надає цілковито актуальну інформацію. Всі оголошення в боті завантажуються в реальному часі, тому Ви завжди будете в курсі усіх актуальних пропозицій в місті.
Бот пропонує зручну і просту систему фільтрації, щоб Ви могли швидко знайти потрібний Вам варіант. Ви можете встановити такі критерії як тип нерухомості (квартира, будинок, комерційні приміщення), кількість кімнат, ціновий діапазон, район, площа та багато іншого. Бот негайно Вам знайде всі актуальні будинки, квартири та комерційні приміщення, а коли в нашу базу нерухомості завантажиться НОВИЙ об’єкт, Розумний БОТ відправить Вам моментально його в телеграмм.
В БОТі Ви можете залишити заявку на допомогу з документами, та по питанням з співпраці і консультант з Вами звяжиться.




































































