Таунхаус район телецентру (№ 22-382-320)
Ціна: 130 000 $

Характеристики
Ціна: | 130 000 $ |
---|---|
№ об'єкта: | 22-382-320 |
Тип: | таунхаус |
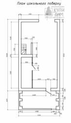
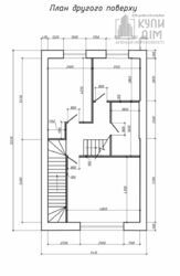
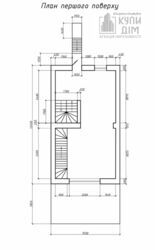
Поверхів: | 2 |
Спалень: | 4 |
Площа будинку: | 210 м2 |
Ділянка: | 3,5 сот |
Площа житлова м2: | |
Площа кухні м2: | |
Тип стін: | Газоблок |
Водопостачання: | Централізоване |
Каналізація: | Центральна |
3D Тур по об'єкту: |
Адреса: Кіровоградська, Кропивницький, Подільський (ленінський), Телецентр
Таунхаус біля Телецентру — 4 рівні комфорту, двір, мальовничий вигляд!
Площа — 200м² | Ділянка — 2 сотки | Під ремонт
Пропонується до продажу стильний таунхаус у престижному районі біля Телецентру — ідеальне поєднання тиші, зручності та краєвидів, які надихають!
✅ 4 рівні (цоколь/гараж + 2 поверхи + мансарда)
✅ Кожен житловий поверх — 70 м²
✅ Є власний двір — 2 сотки
✅ Гарний вид з вікон
✅ До центру 5 хвилин їзди
✅ Під ремонт — плануй і створюй простір на свій смак!
🛠 Переваги:
•Стан під ремонт — можливість реалізувати інтер’єр своєї мрії: обрати оздоблення, кольори, розташування стін і зонування без обмежень.
•Велика площа — достатньо для просторої кухні-вітальні, кількох спалень, гардеробної, кабінету чи дитячої.
•Мансардний поверх — чудове місце для затишної зони відпочинку або домашнього офісу.
•Гараж на цокольному рівні — зручність, безпека, додаткове приміщення для зберігання. Дві автівки з легкістю помістяться.
Монтаж внутрішніх перестінків, вікон та дверей потрібної якості передбачається на розсуд покупця,
Із компенсацією витрат.
🌳 Про ділянку:
•2 рівні сотки власної території — місце для тераси, зони барбекю, дитячого майданчику або саду.
•Асфальтований під’їзд, сучасна вулиця, доброзичливі сусіди.
📍 Локація:
•Престижний район біля Телецентру
•Поруч — магазини, школи, садочки, зупинка.
Для більш детальної інформації телефонуйте
Допомога з продажем Вашої любої нерухомості, підбір будинку, квартири, комерційної нерухомості на Ваш бюджет і з
Вашими побажаннями.
Повний юридичний супровід угоди!!! Вивіз комунальних служб.
Допомога з документами.
22-382-320