Продам дуплекс (№ 22-382-521)
Ціна: 110 000 $

Характеристики
Ціна: | 110 000 $ |
---|---|
№ об'єкта: | 22-382-521 |
Тип: | будинок |
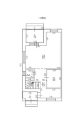
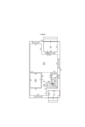
Поверхів: | 2 |
Спалень: | 5 |
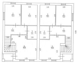
Площа будинку: | 148 м2 |
Ділянка: | 3 сот |
Площа житлова м2: | |
Площа кухні м2: | |
3D Тур по об'єкту: |
Адреса: Кіровоградська, Кропивницький, Подільський (ленінський), Телецентр, АН Купи Дім, 88
Будинок Дуплекс, з двох окремих самостійних частин, з різними входами та окремою адресою. Район горсада, телецентр Площа будинку - 140 кв.м Земельна ділянка - 3 сот. На ділянці є скважина. Стіни - газоблок 400, клінкерна цегла 'Магма Діабаз'. Дах - металочерепиця. Перекриття залізобетонні. Фундамент - бетонні блоки, монолітний пояс. Можливий продаж в кредит. Будинок вже ведений в експлуатацію Ціна: 90000+ торг По всім питанням телефонуйте.
Кількість кімнат: 5;
Тип будинку: Дуплекс;
Рік побудови здачі: На етапі будівництва;
№22382521
Безкоштовне розміщення оголошень більш як на 50 рекламних майданчиках. (для власників нерухомості).
Допомога з продажем Вашої любої нерухомості, підбір будинку, квартири, комерційної нерухомості на Ваш бюджет і з Вашими побажаннями.
Здамо швидко та вигідно в оренду нерухомість, як житлову так і комерційну.
Повний юридичний супровід угоди!!! Вивіз комунальних служб. Допомога з документами.