Продаж Таунхауса у Лісопарковій зоні м.Кропивницький. (№ 22-423-027)
Ціна: 36 000 $

Характеристики
| Ціна: | 36 000 $ |
|---|---|
| № об'єкта: | 22-423-027 |
| Тип: | таунхаус |
| Поверхів: | 2 |
| Спалень: | 3 |
| Площа будинку: | 60 м2 |
| Ділянка: | 1 сот |
| Площа житлова м2: | |
| Площа кухні м2: | |
| 3D Тур по об'єкту: |
Адреса: Кіровоградська, Кропивницький, Фортечний (кіровський), Ново Миколаївка, АН Купи Дім, 88
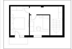
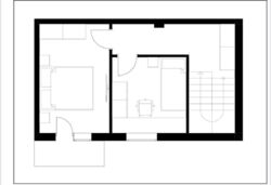
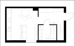
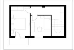
2-поверховий таунхаус загальною площею 60 кв.м з готовим дизайн-проєктом,закритою територією, власним паркомісцем побудований в лісопарковій зоні. На першому поверсі простора вітальня,кухня, на другому поверсі 2 спальні,санвузол, балкон Тихе місце, чисте повітря, комфортне та затишне місце для життя. Поруч супермаркет, аптека, транспортна розвязка. Район Лісопаркова,м.Кропивницький За більш детальною інформацією звертайтесь по телефону:
Кількість кімнат: 3;
Тип будинку: Таунхаус;
Рік побудови u002F здачі: На етапі будівництва;
Тип стін: Цегляний;
Тип покрівлі: Металочерепиця;
Cанвузол: Суміжний;
Ремонт: Авторський проект;
Комфорт: Балкон, Огорожа;
Інфраструктура (до 500 метрів): Аптека, Дитячий садок, Супермаркет, ТРЦ, Зупинка транспорту;
Ландшафт (до 1 км.): Ліс;
Допомога з продажем та орендою Вашої любої нерухомості, підбір будинку, квартири, комерційної нерухомості на Ваш бюджет і з Вашими побажаннями.
Повний юридичний супровід угоди!!! Вивіз комунальних служб. Допомога з документами
22-423-027

























