2-кім. з кухнею-вітальнею і 2 ванними в ЖК А+Я. (№ 213-147-459)
Ціна: 62 500 $

Адреса: Андріївська, Кропивницький, Кіровоградська, Фортечний (кіровський), Ковалiвка
Характеристики
| Ціна: | 62 500 $ |
|---|---|
| № об'єкта: | 213-147-459 |
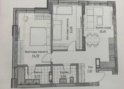
| Кімнат: | 2 |
| Поверх: | 9 / 16 |
| Площа: | 66 / - / 18 м2 |
| Санвузол: | 2 сумісний |
| Балкон: | відсутній |
| 3D Тур по об'єкту: |
Опис
Простора 2-кімнатна з великою кухнею-вітальнею у найгарнішому ЖК міста. За кількадесят метрів уся необхідна інфраструктура, ринок, зупинки транспорту, супермаркети й магазини. Поруч центр міста, залізничний вокзал, парк. Будинок повністю зданий в експлуатацію, встановлені й опломбовані лічильники на світло й воду, в квартири заведено 10 кіловат. В будинку подбали про автономність - навіть за відсутності електрики у відкритих зонах передбачене освітлення, а квартири будуть з теплом і водою за рахунок сучасних систем опалення й водопостачання. У холі будинку працює консьерж-сервіс, пост охорони й зона відпочинку. Для родин з немовлятами обладнана кімната для візочків біля ліфту, а для самих малюків - розкішний дитячий майданчик, навпроти якого дорослі можуть відпочити у облаштованих зелених зонах з тренажерами, лавками й столиками сучасного дизайну. На перших поверхах будуть продуктові супермаркети й інші магазини для зручності мешканців. Ну хіба не мрія? Тим більше, продаж напряму від власника, та ще й з торгом (у розумних межах,звісно)).
Вид обєкта: Новобудова;
Тип будинку: Житловий фонд від 2021 р.;
Назва ЖК: А+Я;
Тип стін: Монолітний;
Планування: Роздільна;
Cанвузол: 2 і більше;
Опалення: Власна котельня;
Ремонт: Після будівельників;
Меблювання: Ні;
Комфорт: Пожежна сигналізація, Відеоспостереження, Консерж, Охорона території, Ліфт;
Комунікації: Центральний водопровід, Електрика, Центральна каналізація, Каналізація септик, Вивіз відходів, Асфальтована дорога;
Інфраструктура (до 500 метрів): Зупинка транспорту, Ринок, Магазин, кіоск, Супермаркет, ТРЦ, Парк, зелена зона, Дитячий майданчик, Аптека, Центр міста, Ресторан, кафе, Відділення пошти, Відділення банку, банкомат, Залізнична станція;
Ландшафт (до 1 км.): Річка, Парк;
Допомога з продажем Вашої любої нерухомості, підбір будинку, квартири, комерційної нерухомості на Ваш бюджет і з Вашими побажаннями.
Повний юридичний супровід угоди!!! Вивіз комунальних служб. Допомога з документами.
213-147-459








